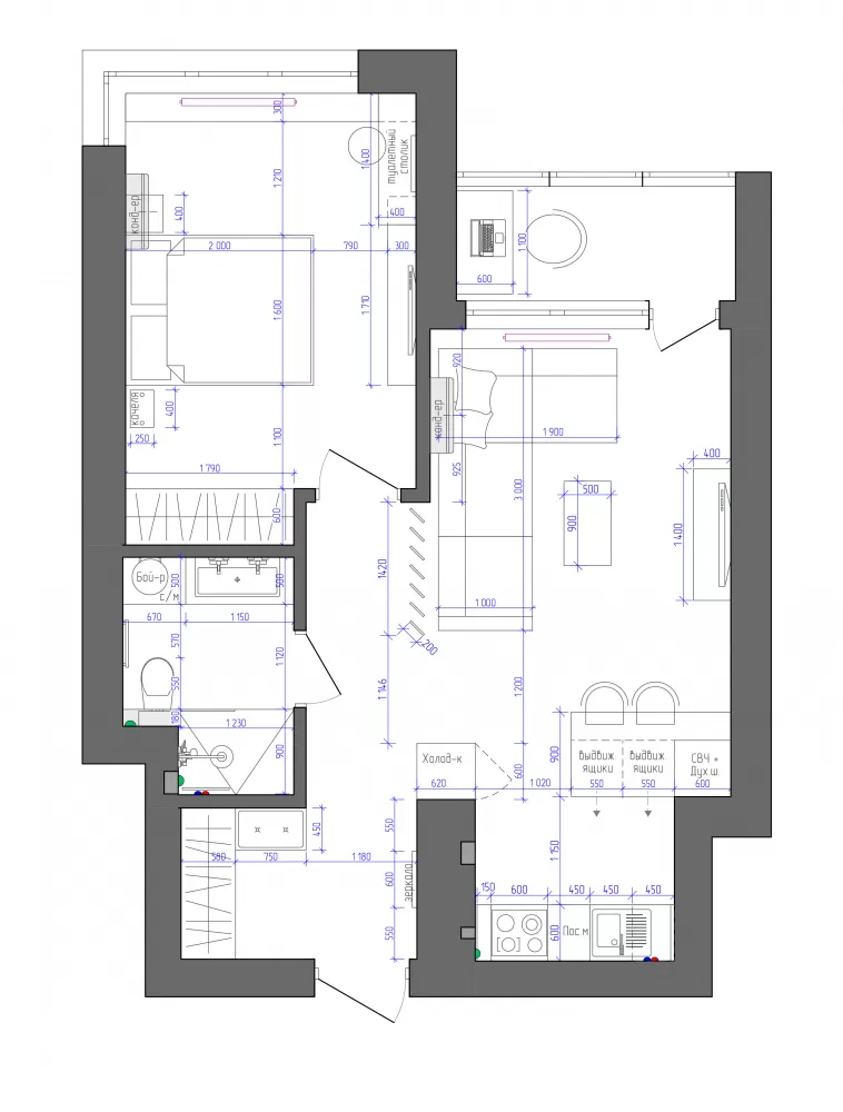
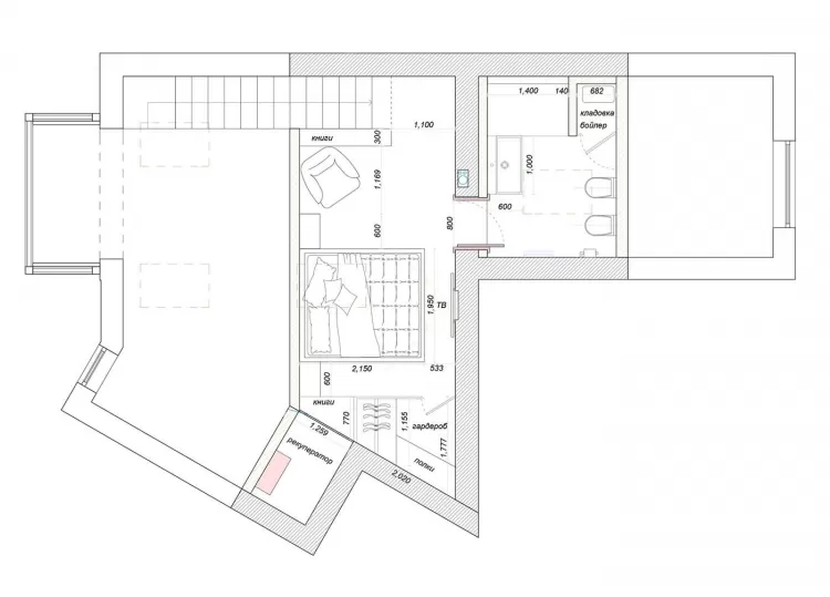
Планировка в дизайн-проекте 2-комнатной квартиры в ЖК Заречный, 50м.кв.
Заказать дизайн-проект
Адаптация дизайн-проекта
Получить образец дизайн-проекта
Получить консультацию
Другие фото в проекте Дизайн-проект 2-комнатной квартиры в ЖК Заречный, 50м.кв.