В гостиной продумано четыре типа световых сценариев. Один из них — это подсветка шторощели, очень уютный тип освещения для вечерних киношных посиделок с друзьями. Плюс к этому LED ленты, белые споты на потолке и большой черный плафон над столом. На полу мы использовали широкоформатную керамическую плитку, имитирующую натуральный мрамор callacata, и предусмотрели теплый пол, чтобы было комфортно ходить без тапочек.
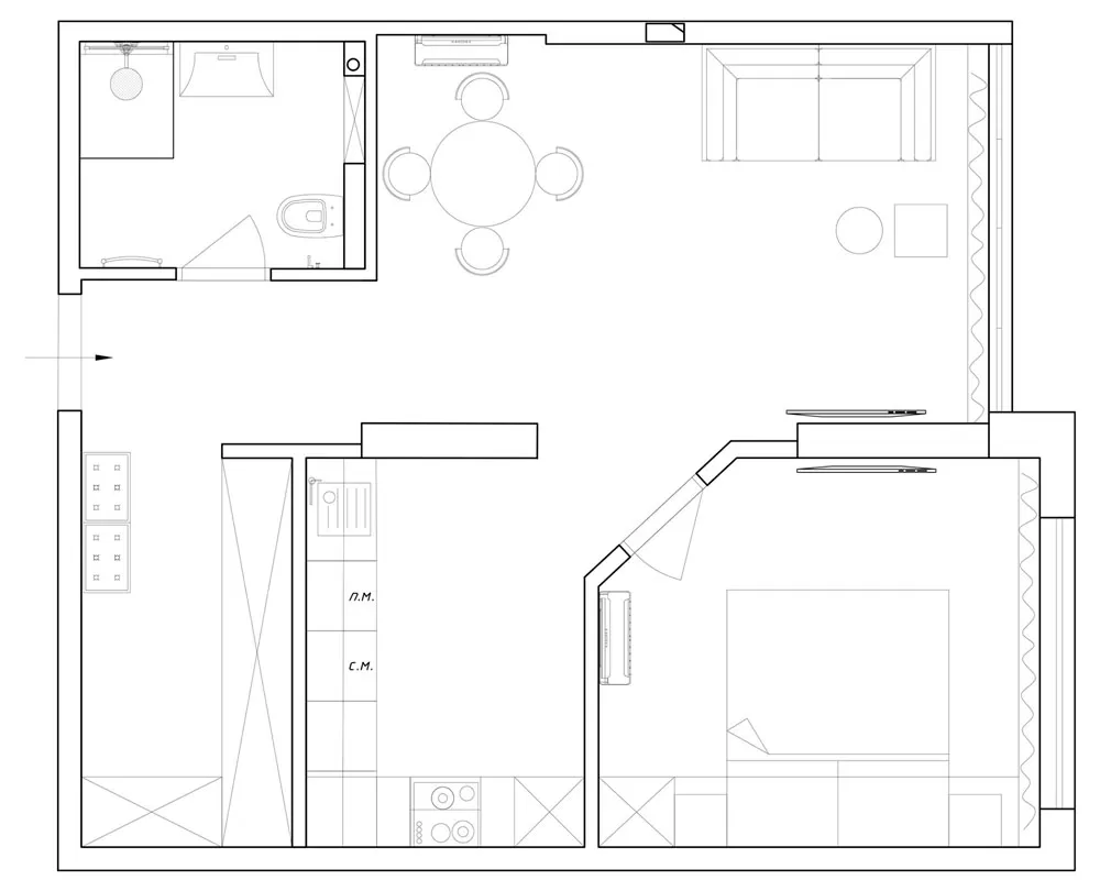
Спальня получилась компактная, потому что мы забрали от нее кусочек для кухни, но ощущается комната хорошо и органично, как настоящее приватное пространство.Вместительная г-образная композиция из мебели + ниша под кроватью для белья дают возможность без проблем разложить все по полочкам. Здесь предусмотрены два типа подсветки: шторощели и подвесные бра. В эту комнату мы приобрели подвесную тумбочку Drommel из гнутого металла, чтобы не загромождать пространство. Очень любим подобные маленькие акценты.
В санузле мы опустили канализацию, чтобы сделать уклон для слива воды и организовать душевое место без поддона. Получилось красиво, аккуратно и удобно. На полу использовали интересную “джинсовую” плитку, она очень приятная на ощупь, как ткань, и добавили немного игривости яркой плиткой на стене. Здесь много шкафов для всяких банных принадлежностей и скрытого проточного водонагревателя. Кстати, мы очень не любим бойлеры, но это уже тема для отдельного разговора:)
.webp)